The UK quattro Network
The UK's mobile Audi 5-cylinder mechanic - 07833 654800, 24x7
Specialist in turbos, quattros, electrics and non-starts

Audi 100/200 Factory Wiring Diagrams

4 - Cruise Control (from 1/88) Manual and Automatic Gearbox

5 - Auto-Check-System (from 7/89)

6 - External Temperature Display (from 7/89)

7 - On-board Computer KE-Jetronik, KEIII-Jetronik (from 7/89)

8 - On-board Computer K-Jetronic und Turbo Engines (7/89)

9 - 3D and NC Engines; 2.4l 60kW 5 Cylinder Diesel, 2.0l 65kW 5-Cylinder Turbodiesel

10 - PH Engine - 1.8l 66kW 4-Cylinder KE-Jetronic Injection

11 - Cruise Control (from 7/89) Manual and Automatic Gearbox

16 - ABS (from 1/88) not Quattro!

24 - Differential Lock (from 1/88)

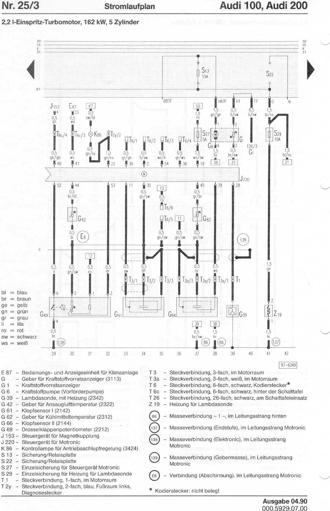
25 - 3B Engine

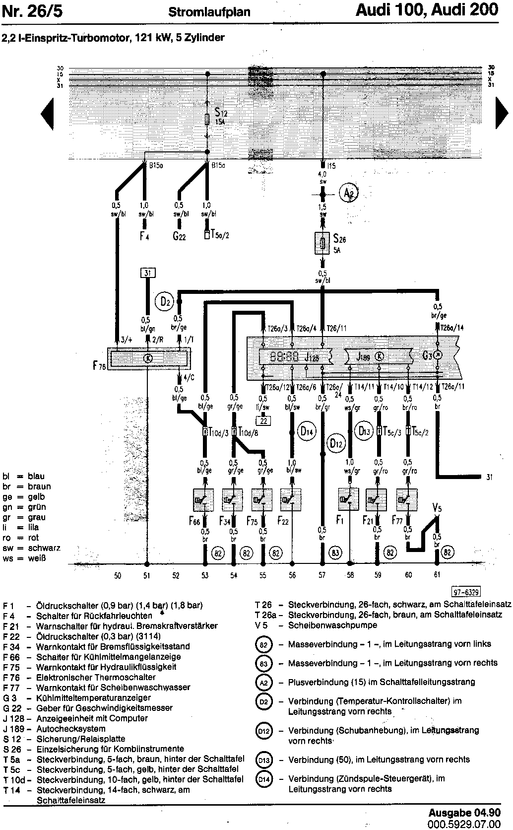
26 - MC Engine

Page Contents
Relays and Power 
Tracks 1-14Fuel level sender, fuel pump, lambda sensor, ECU, knock sensors, fuel frequency valve, warm-up regulator, cold start valve, wastegate frequency valve
Tracks 15-28RPM and timing sensors, idle & WoT switches, coolant temperature sender
Tracks 29-42Inlet air temperature sender, Hall effect sender, coil, overrun shutoff valve, distributor
Tracks 43-49Idle stabilisation
Tracks 50-61Electronic thermoswitch, autocheck unit, display
Tracks 62-75Engine cooling and fresh air fan controls

63 - NF Engine - 100kW 5-Cylinder KEIII-Jetronik with knock sensor

74 - Additional Instruments (from 7/88)

75 - Electric Seats with Memory (from 1/88)

78 - Bordcomputer (Audi 200 ab 7/88)

11 - ABS Quattro (from 7/88)

11 - Alarm (from 1/88)

14 - Heated Seats (from 1/88)

13 - Rear Fog Lights (from 1/88)

15 - Electric Windows (from 1/88)

29 - Electric Windows (from 7/89)

21 - Electric Headlight Adjustment (from 1/88)

14 - Electric Headlamp Adjustment (from 7/89)

3 - Electrically Moveable and Heated Mirrors (from 1/88)

4 - Electrically Moveable and Heated Mirrors (from 7/89)

7 - Central Locking (from 1/88)

67 - Airbag (from 7/88)

69 - Electric Sunroof (from 1/88)

70 - Stereo Radio with Active Loudspeakers

Page Contents
Relays and Power
Tracks 1-11
Tracks 12-27
Tracks 28-33

72 - Stereo Radio with Amplifier (from 7/88)

27 - BOSE Radio from 7/89)

51 - Heated Washer Jets (from 1/88)

65 - Trailer Coupling (from 7/88)

64 - Automatic Gearbox (from 7/88)

12 - Stationary Heater (from 7/89)

3 - Stationary Heater with Climate Control (from 7/89)